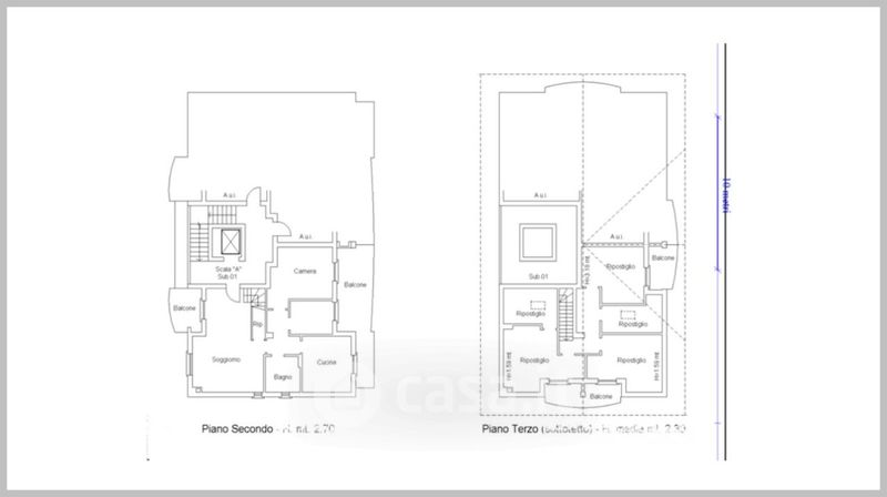
Appartamento in vendita Via Leonardo Daddabbo , Sammichele di Bari
Salva
Casa.it
1/37
  • Street View
  • Map