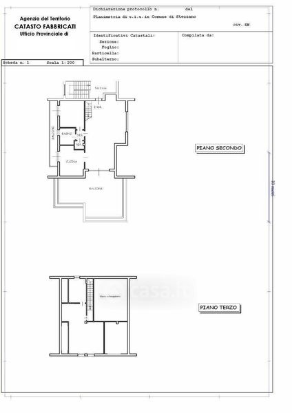
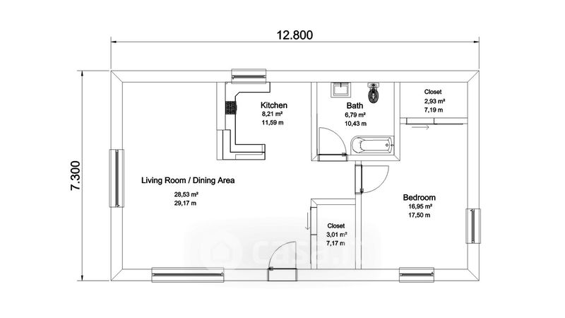
Appartamento in vendita Via Dardanelli , Santeramo in Colle
Salva
Casa.it
1/39
  • Street View
  • Map