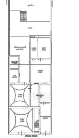
Appartamento in vendita Via Isonzo 22, Soleto
Salva
Casa.it
1/21
  • Street View
  • Map