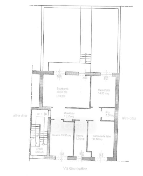
Appartamento in vendita Via Giambellino 7, Stornara
Salva
Casa.it
1/39
  • Street View
  • Map