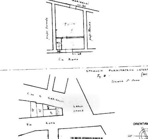
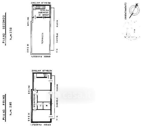
Appartamento in vendita Corso Giuseppe Garibaldi 41, Stornarella
Salva
Casa.it
1/30
  • Street View
  • Map