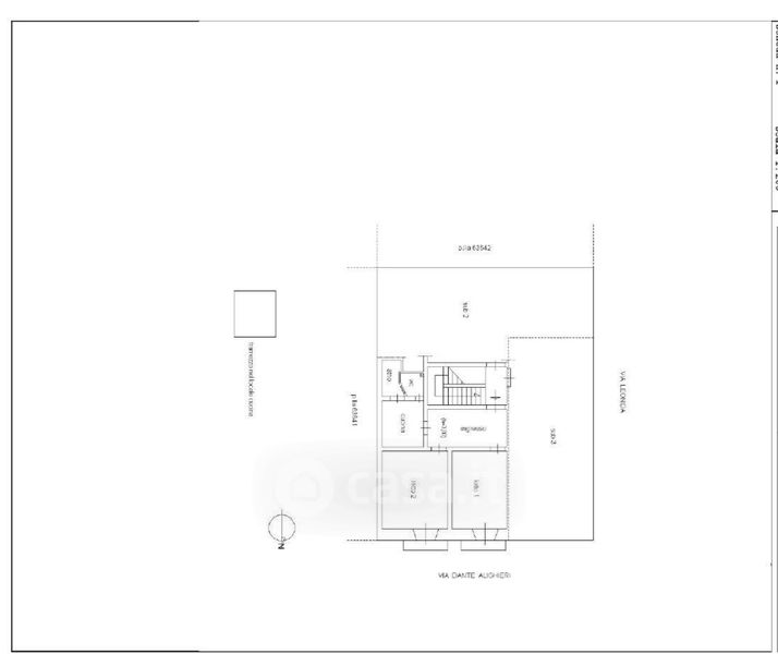
Appartamento in vendita Via Leonida 59, Taranto
Salva
Casa.it
1/17
  • Street View
  • Map