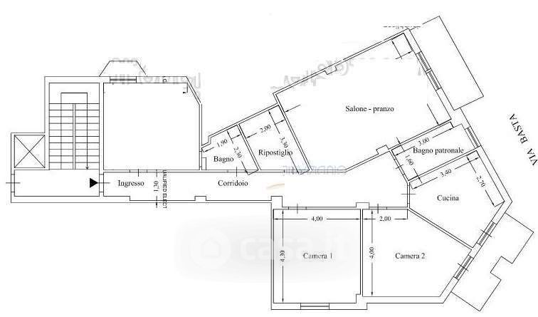
Appartamento in vendita Via Cervaro 15, Taranto
Salva
Casa.it
1/28
  • Street View
  • Map