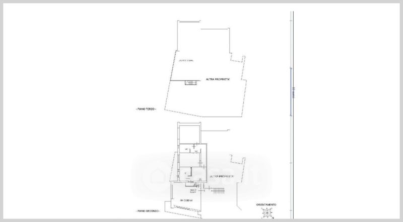
Appartamento in vendita Via Alberto Sordi , Taranto
Salva
Casa.it
1/32
  • Street View
  • Map