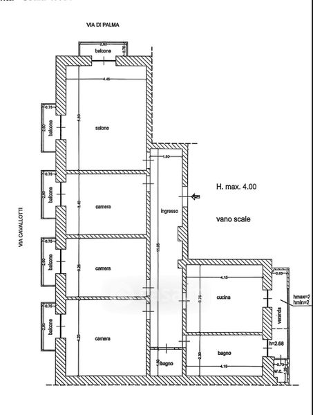
Appartamento in vendita Via Federico di Palma 41, Taranto
Salva
Casa.it
1/43
  • Street View
  • Map