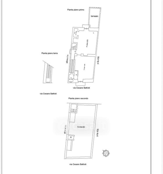
Appartamento in vendita Via Cesare Battisti 63, Triggiano
Salva
Casa.it
1/50
  • Street View
  • Map