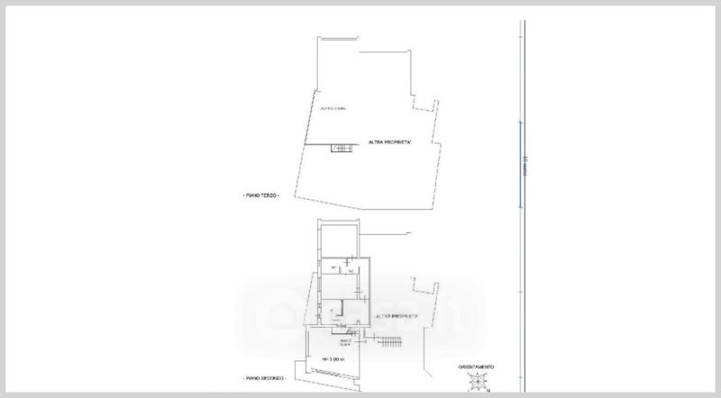
Appartamento in vendita Via Nicola Orlandi , Turi
Salva
Contatta l'inserzionista
Casa.it