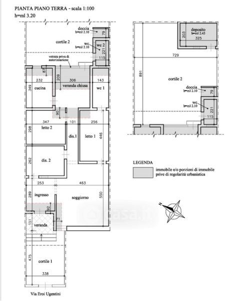
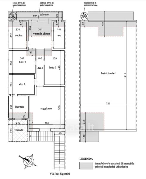
Appartamento in vendita Via Eroi Ugentini 44, Ugento
Salva
Casa.it
1/39
  • Street View
  • Map