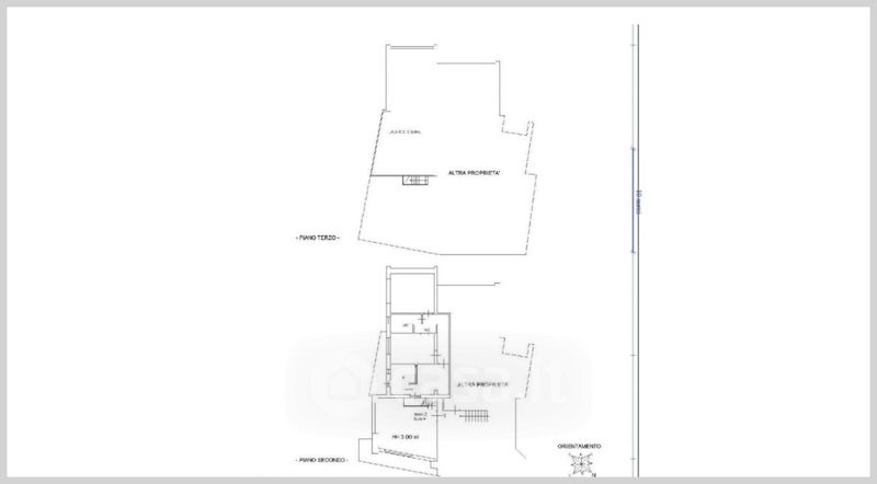
Appartamento in vendita Via Roma , Vico del Gargano
Salva
Casa.it
1/37
  • Street View
  • Map