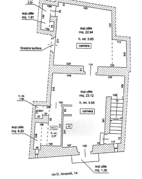
Appartamento in vendita Via Domenico Arcaroli , Vieste
Salva
Casa.it
1/38
  • Street View
  • Map