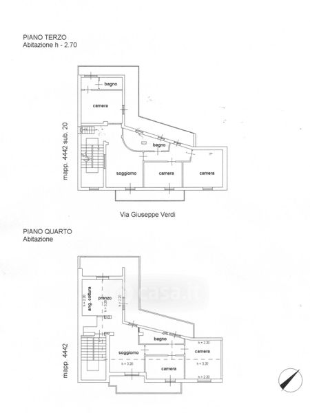
Appartamento in vendita Via Giuseppe Verdi , Alghero
Salva
Casa.it
1/45
  • Street View
  • Map