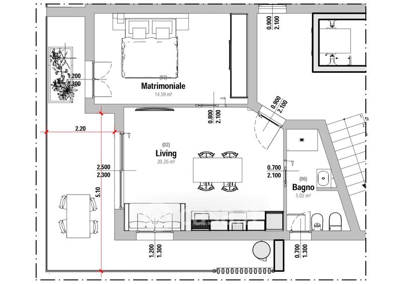
Appartamento in vendita Via Angelo Roth 9, Alghero
Salva
Casa.it
1/8
  • Street View
  • Map