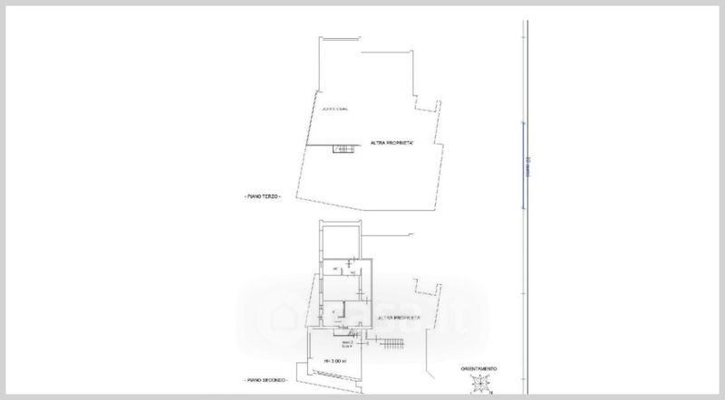
Appartamento in vendita Via Vittorio de Sica , Cagliari
Salva
Casa.it
1/32
  • Street View
  • Map