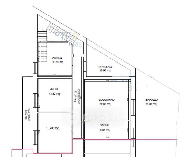
Appartamento in vendita Via Tempio 47, Calangianus
Salva
Casa.it
1/24
  • Street View
  • Map