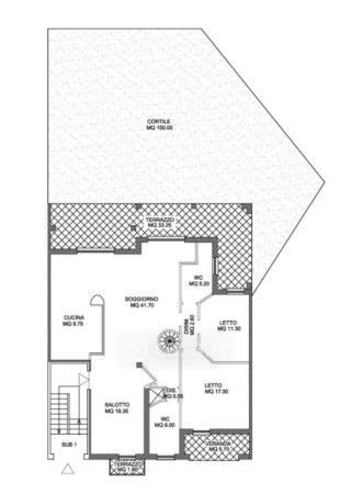
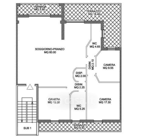
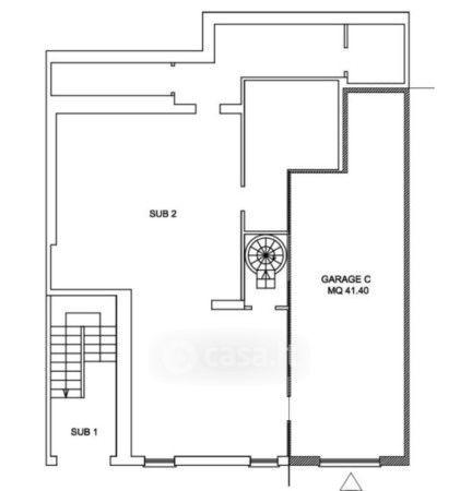
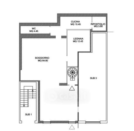
Appartamento in vendita Via Luras , Calangianus
Salva
Casa.it
1/21
  • Street View
  • Map