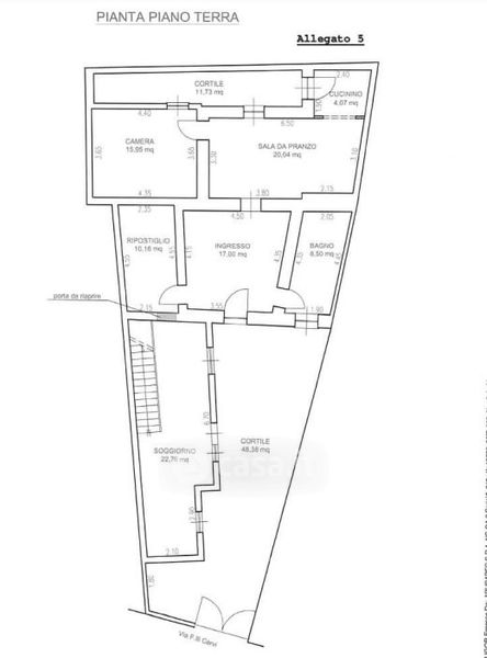
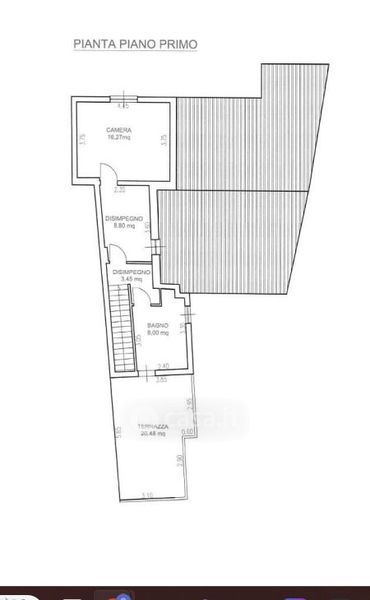
Appartamento in vendita Via Fratelli Cervi , Domusnovas
Salva
Casa.it
1/35
  • Street View
  • Map