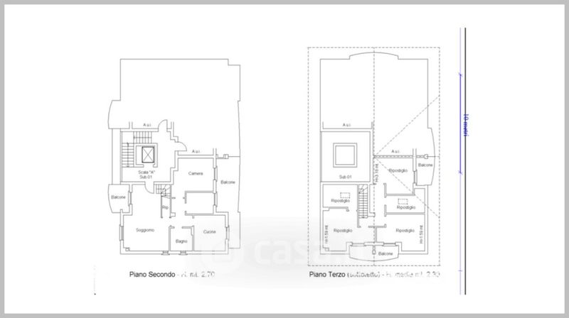
Appartamento in vendita Via Fratelli Farci , Iglesias
Salva
Casa.it
1/32
  • Street View
  • Map