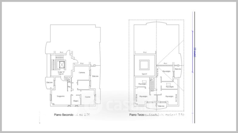
Appartamento in vendita Via Giovanni Cesaraccio , La Maddalena
Salva
Casa.it
1/37
  • Street View
  • Map