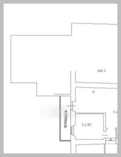
Appartamento in vendita Via Regina Margherita , La Maddalena
Salva
Casa.it
1/32
  • Street View
  • Map