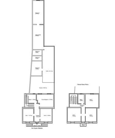
Appartamento in vendita Via Grazia Deledda , Narbolia
Salva
Casa.it
1/18
  • Street View
  • Map