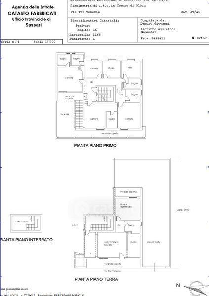
Appartamento in vendita Via Tre Venezie , Olbia
Salva
Casa.it
1/39
  • Street View
  • Map