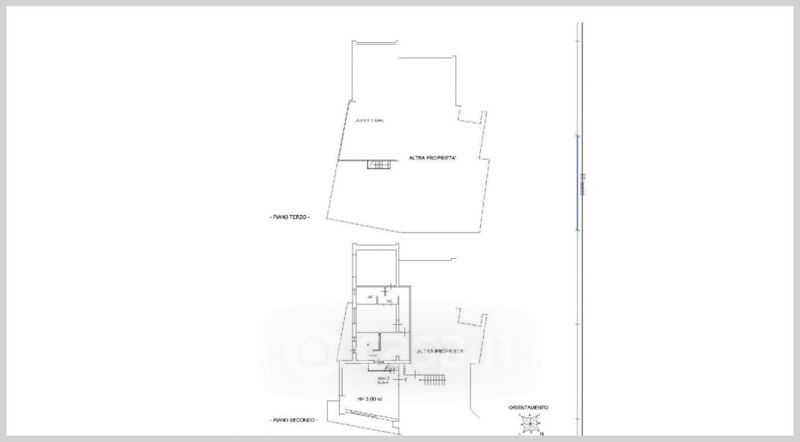
Appartamento in vendita Via Vittore Carpaccio , Oristano
Salva
Casa.it
1/39
  • Street View
  • Map