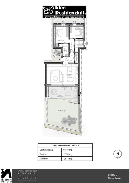
Appartamento in vendita Via dell'Elicriso , Palau
Salva
Contatta l'inserzionista
Casa.it