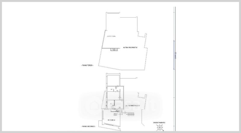
Appartamento in vendita Via Sebastiano Satta , Palmas Arborea
Salva
Casa.it
1/32
  • Street View
  • Map