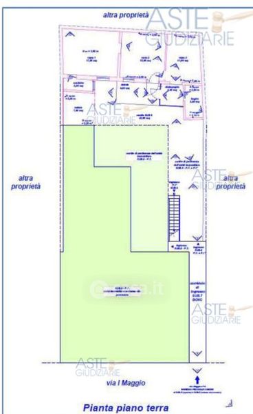
Appartamento in vendita Via I Maggio , San Gavino Monreale
Salva
Casa.it
1/38
  • Street View
  • Map