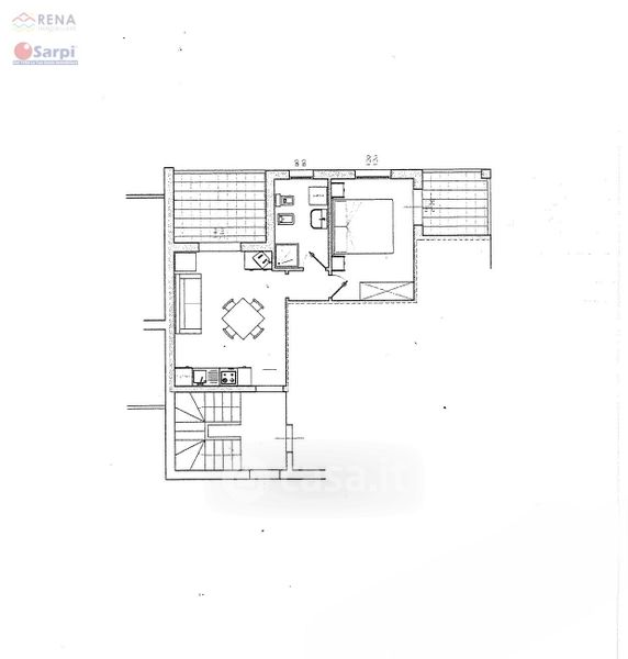
Appartamento in vendita Via Capo Testa 27, Santa Teresa Gallura
Salva
Casa.it
1/32
  • Street View
  • Map