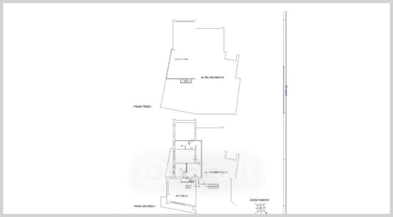
Appartamento in vendita Vico V Umberto I , Sardara
Salva
Casa.it
1/32
  • Street View
  • Map