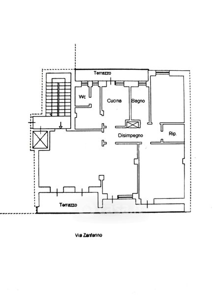
Appartamento in vendita Via Maurizio Zanfarino , Sassari
Salva
Casa.it
1/2
  • Street View
  • Map