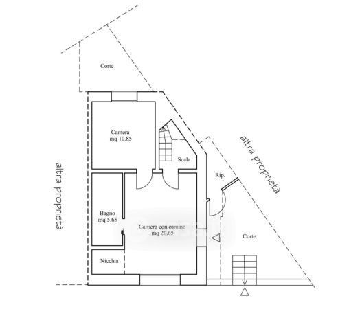
Appartamento in vendita Via Fratelli Cervi , Tempio Pausania
Salva
Casa.it
1/21
  • Street View
  • Map