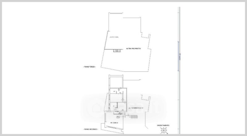
Appartamento in vendita Via Imera , Acireale
Salva
Casa.it
1/37
  • Street View
  • Map