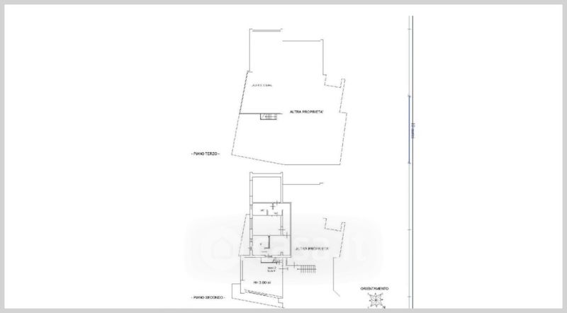
Appartamento in vendita Via Degli Argentieri Acesi , Acireale
Salva
Casa.it
1/32
  • Street View
  • Map