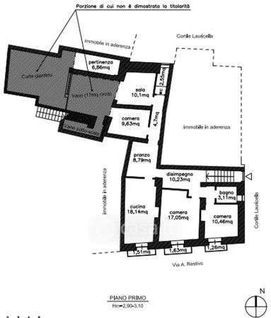
Appartamento in vendita Cortile Lauricella , Agrigento
Salva
Casa.it
1/20
  • Street View
  • Map