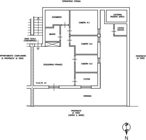
Appartamento in vendita Via Caronte , Alcamo
Salva
Casa.it
1/19
  • Street View
  • Map