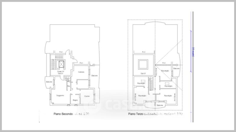
Appartamento in vendita Corso Sicilia , Augusta
Salva
Casa.it
1/32
  • Street View
  • Map