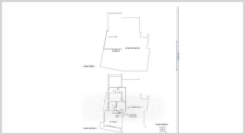
Appartamento in vendita Cortile Cuntrera , Avola
Salva
Casa.it
1/32
  • Street View
  • Map