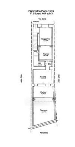
Appartamento in vendita Via D. Scinà , Barcellona Pozzo di Gotto
Salva
Casa.it
1/36
  • Street View
  • Map