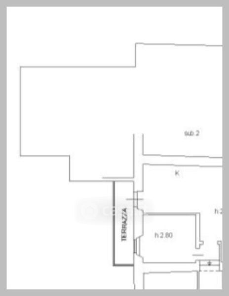
Appartamento in vendita Via Grazia Deledda , Belpasso
Salva
Casa.it
1/32
  • Street View
  • Map