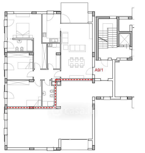
Appartamento in vendita Via Acireale 70, Catania
Salva
Casa.it
1/19
  • Street View
  • Map