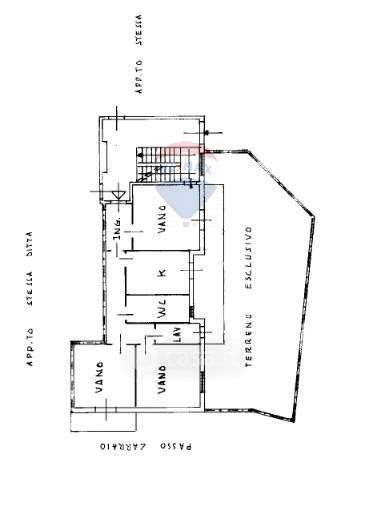
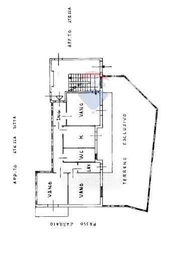
Appartamento in vendita Via Barriera 27, Catania
Salva
Casa.it
1/29
  • Street View
  • Map