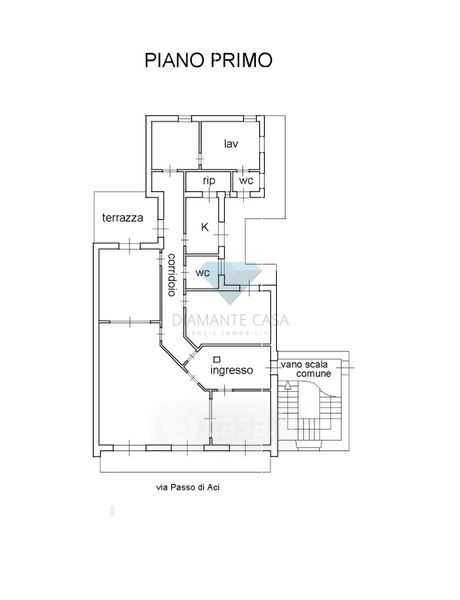
Appartamento in vendita Via Passo di Aci 100, Catania
Salva
Casa.it
1/28
  • Street View
  • Map