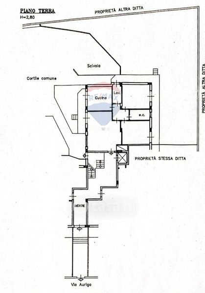
Appartamento in vendita Via Auriga 13, Catania
Salva
Casa.it
1/37
  • Street View
  • Map