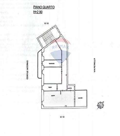
Appartamento in vendita Via Petrella 64, Catania
Salva
Casa.it
1/36
  • Street View
  • Map