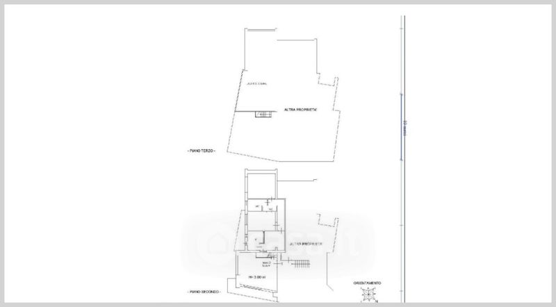
Appartamento in vendita Via Della Primula , Catania
Salva
Casa.it
1/39
  • Street View
  • Map