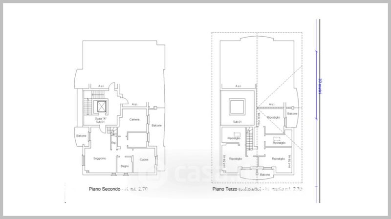
Appartamento in vendita Via Giuseppe Missori , Catania
Salva
Casa.it
1/39
  • Street View
  • Map