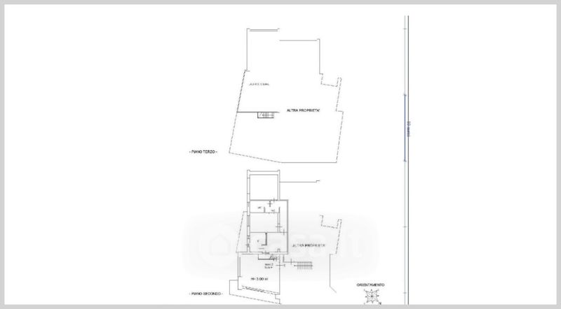
Appartamento in vendita Via del Daino , Catania
Salva
Casa.it
1/32
  • Street View
  • Map