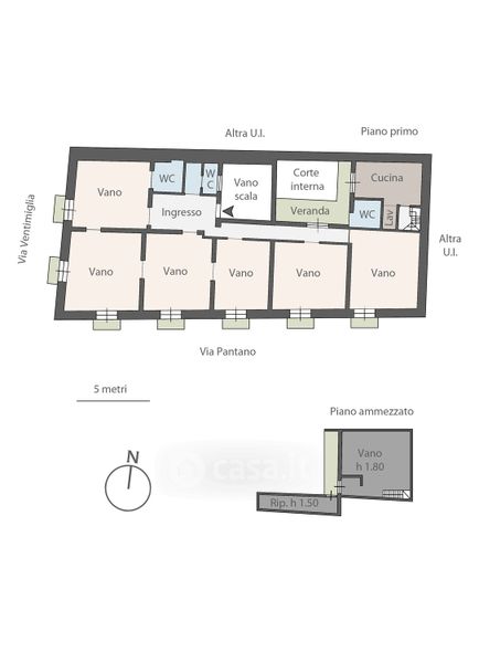
Appartamento in vendita Via E. A. Pantano 93, Catania
Salva
Casa.it
1/27
  • Street View
  • Map